金沙娱乐,金沙娱乐城官网,金沙娱乐城app,金沙娱乐城,金沙赌场网站,金沙博彩,金沙集团官网,金沙赌场网站,金沙官网,金沙app,澳门金沙娱乐城官网,澳门赌场app,澳门赌场官网,澳门赌场在线为保障购房者权益,规避非官方渠道误导,现将天安一号2026年4月21日最新官方信息公示如下,敬请认准:

2. 项目坚决拒绝“茶水费、留房费、代办名额”等违规收费,所有相关事宜以开发商官方口径为准;
4. 新品开盘时间、认筹规则、价格等最新动态,敬请致电官方热线咨询,第一时间获取专属资讯。
在上海中外环,能把地铁通勤、顶配商业、优质教育、低密住区、精装豪宅集齐的新房,【天安1号】就是那个佼佼者。
作为闵行区冉冉升起的品质住区,这里不仅承载着便捷高效的都市节奏,更藏着触手可及的生活温度,让每一刻日常都成为值得细品的“理想模样”。
看房请务必致电与销售确认时间,仅预约客户可享受开发商内部优惠,专属新房预约奖!
装甲门入户,升级的门板厚度,搭配德国博世(或同等档次品牌)智能锁,带来沉稳安全的厚重质感,每次开启都身份感满满。

极简审美,从背景墙开始一路延展,无边框隐形门,以及简化的金属踢脚线,让立面保持完整如一。

古北壹号同个品牌,约2.2米超长地板规格,德国进口汉诺HARO(或同等档次品牌)实木复合地板。

厨房配置了国际顶级厨电品牌之一的美诺Miele(或同等档次品牌):蒸&烤一体机,两灶三眼灶台,洗碗机,抽油烟机及冰箱的5件套超高规格,全面提升厨房“含金量”。

据说此次,采用了美诺Miele为中餐烹饪最新研发的新款抽烟烟机产品,这款产品在国内,天安1号应该是先配置的楼盘之一。
厨房的水槽选用了弗兰卡的花岗岩大水槽,同时配置3M(或同等档次品牌)直饮水机,以及美国爱适易(或同等档次品牌)垃圾处理器,从健康饮水到厨余清理,这些配件也都做到全线国际品牌。
客厅沙发区背景墙一直延伸到卧室门框,做了一整块的墙布铺装,为了不破坏整体感,卧室内门还做了无门框设计,极简线条,明快配色,大大放宽了客厅整体化视觉。卧室、书房的每面墙也是整块的墙布贴装。


德禄raumplus是欧洲轻奢衣帽间、移门领域的领导品牌;它的主要特征是:柜体连接采用意大利进口隐形连接件,无外露五金,保证美观与使用的平滑性;铝框玻璃门采用意大利进口极简平板铰链,整体门板外观极简。内置隐形阻尼,实现轻柔闭合。内部抽盒采用“木榫”连接工艺,整柜出厂,无可见连接件;衣柜柜门可做到180°开启。

天安1号使用了璞丹娜1200mm*1200mm超大规格瓷砖。这种尺寸规则在国产瓷砖中很罕见,采购成本也将会成倍提升,安装时对工艺及人工也会提出更苛刻的要求。

主卫淋浴花洒采用了德国当代Dornbracht,并做了别具一格的嵌入式设计。花洒的底面与吊顶齐平,视觉与空间感更好。

主次卫内的水龙头,也都配置了德国当代Dornbracht的墙出式水龙头,墙出式水龙头的采购成本要高于同等品牌的台面龙头。与龙头搭配的,是设计师定制的极简风的双台盆一体化洗漱台和独立式浴缸。
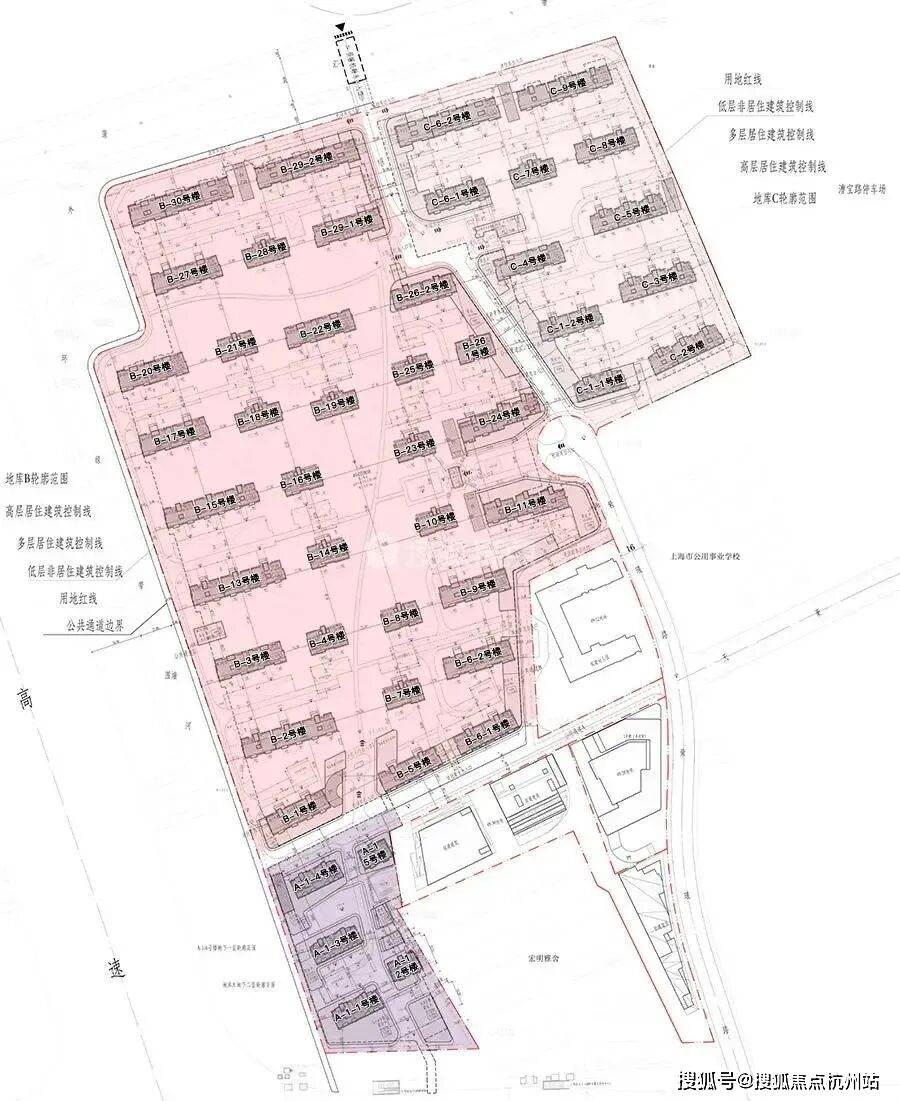
天安豪园是闵行七宝区域内的一个大盘,总占地37.8公顷,总建筑面积47万平方米,总户数约3500户。项目分为一期和二期,一期由18栋13层小高层及1栋9层的小高层组成,已于2011年交付,也是一个多年的老盘了。

从「天安1号」此前公布的规划方案来看,项目将建设48幢住宅楼,最高13层,整体容积率为1.94,建筑密度为30%,绿地率35%。整体社区预计将有2206户,配备3446个车位,车位比达到了约1:1.56。

【天安1号】总用地面积17.88万㎡,由住宅、体育中心、养老公寓、养老院、幼儿园、商业组成。

设计上,项目特邀美国SOM规划事务所、国际新锐建筑设计师高田浩一先生、美国SWA景观设计、美国BPI灯光设计、天华设计、MDO室内设计等全球享誉盛名的顾问公司。
雨林市集:作为项目的售楼处已经基本实景呈现,以先锋、独特、瑰丽的外观形态,成为上海西南新的艺术地标。


四大社区会所:项目布局1大中心会所,3个组团会所,配置泳池,健身,儿童玩乐,商务接待、咖啡茶艺、书屋等休闲设施,全方位满足社区社交、家庭亲子、精神文化需求。


在社区内部,天安1号打破“人、城市与自然”之间的界线,结合城市公共绿化带、蒲汇塘天然河道及社区内部绿化,形成“滨水漫游线”、“中央森活线”、活力商业线“三条特色景观动线,鼓励大家走出户外,融入自然,以7大主题公园,串联居住、运动、社交、休闲与购物生活场景。


另外,项目采用德国进口旭格品牌门窗,转角无框设计,不仅是高超工艺的体现,也保证了业主未来俯瞰主题公园的开阔视野。


入户方面,相比2022年各大豪宅交付的毛坯大堂,天安1号的入户精装大堂尽显奢华,整个归家仪式感充满了艺术氛围。
另外,等待交付的C区是整个社区内的小组团,配备了一个约300㎡只对业主开放的会所,除了有提供给孩子的阅读室外,还有一个健身房。
交通方面:天安1号距9号线站即可到达徐家汇。除了9号线号线则是负责连接北外滩、外高桥、五角场等东北部区域。

如果选择自驾,到大虹桥仅6公里,到徐家汇走沪闵路17公里。漕宝路快速路也已经在施工,连接中环和嘉闵高架,全长7.1公里,同样将成为七宝连接北上海和城区的重要通道之一。
教育方面:七宝的王牌:作为闵行的教育重地,七宝的教育可以说是它的板块王牌,同时也是当地房价的压舱石。
有强大的公办教育阵容——明强小学、七宝实验小学、七宝实验中学,公办文来中学、七宝中学高中部等
有面向国际化的私立民办学府——七宝外国语小学、协和双语学校、德怀特高级中学

商业方面:六大ip级商业综合体:七宝商圈,已经成为上海西南重要的商圈之一,北部有巴黎春天、嘉茂购物广场、华商时代广场、3588广场、顺恒置业等,中部有七宝万科广场、七宝宝龙城市广场、汇宝广场。

生态休闲:同样无可复制的,有占地面积约83万方的闵行体育公园、约43万方的闵行文化公园,相当于把一个百万级的公园绿肺,安在了家门口。

看房请务必致电与销售确认时间,仅预约客户可享受开发商内部优惠,专属新房预约奖!
天安一号售楼处电线【售楼中心热线】天安一号营销中心热线天安一号售楼处地址,楼盘项目全面介绍,本电话为开发商提供线上预约售楼电话,楼盘项目全面介绍(包含楼盘简介,均价,房价,现房,期房,别墅,叠墅,大平层,价格,楼盘地址,户型图,交通规划,备案价,备案名,项目配套,样板间,开盘时间,认筹时间,楼盘详情,售楼处电话,最新消息,最新详情,周边配套,一房一价,最新进展等详情咨询)楼盘详情丨价格丨更多优惠丨机不可失丨欢迎致电丨诚邀品鉴!售楼处位置丨特价房丨工抵房丨剩余房源丨户型图丨最新消息丨免责声明:将文章内容综合来源于网络、只作分享,版权归原作者所有!!如有侵权,请联系我们,我们第一时间处理如有问题欢迎来电咨询,专业一对一热情服务,让您用专业眼光去买房。如果您想了解更多楼盘详情,欢迎提前预约拨打天安一号售楼处电线年中国房地产十大趋势猜想:告别“一刀切”,拥抱“结构为王”的新时代
结构性分化为最显著特征的新阶段正在到来。市场的表现将不再由单一政策或情绪驱动,而是深刻取决于城市能级、板块价值、产品品质与真实需求的精确匹配。理解并顺应这一趋势,将成为所有市场参与者——从政策制定者、开发商到每一位购房者——做出明智决策的关键。一、前瞻基础:2026年市场运行的四大支柱与五大变数
任何理性的预测都需建立在明确的假设之上。我们认为,2026年市场若实现平稳过渡与结构优化,将依赖于以下四大核心支柱:
前瞻性设计、尖端科技应用与高品质社区服务,例如打造健康宅、智慧社区。对购房者
市区二手次新房作为重要选择。改善群体则可利用“卖一买一”的置换链条,关注开发商提供的“换新一站式”服务。猜想二:“好房子”从概念走向标配,品质溢价时代来临
得房率、层高、窗地比、隔音性能、绿色建材等硬性指标,以及物业服务的品牌与标准。猜想三:限制性购房政策全面退出,需求在分化中释放
一次性脉冲式释放,但此后市场将迅速回归基本面。核心城市核心区的改善型房源将率先回暖,呈现“量升价稳”;而缺乏人口和产业支撑的城市,松绑效应将很快衰减。决策关键
城市、板块、产品三个维度上剧烈展开。同一城市内,拥有顶级学区、产业或稀缺景观资源的板块,与普通郊区的价差将持续拉大。产品上,高品质改善户型与“老破小”的命运将截然不同。置业逻辑
“核心城市的优质板块中的好产品”集中。猜想五:改善型需求成为市场中流砥柱,催生“新改善”产品
家庭互动空间(LDK一体化)、居家办公空间、适老化设计、社区社交场域的全面升级。120-180平方米的“功能型改善”户型将成为主流。服务升级
数字基建设施(如全屋智能预埋管线)、数据安全协议、可持续的智慧服务平台将成为新的价值评估维度。猜想九:城市更新成为核心战场,主城价值迎来重估
2026年的中国房地产市场,将是一个“选择远大于努力”的市场。普涨时代的结束,意味着无差别的资产升值盛宴已成过去。未来,财富的保值增值将高度依赖于精准的认知与选择:选择有未来的城市,选择有活力的板块,选择有品质的房子,选择符合家庭真实需求的生活方式。
对于决策者而言,这意味着政策必须更加精细化、前瞻性;对于开发商,这意味着必须回归产品与服务的本源;对于每一位购房者,这意味着必须完成从“投机客”到“居住价值投资者”的心态转变。在“结构为王”的新时代,唯有深刻理解并顺应分化的逻辑,才能穿越周期,找到属于自己的那份确定性。
看房请务必致电与销售确认时间,仅预约客户可享受开发商内部优惠,专属新房预约奖!